Complesso in vendita

Teolo, Via Euganea Bresseo - Treponti
€ 500.000
10 locali 10 locali
320 Mq 320 Mq
5 bagni 5 bagni

Complesso in vendita

Teolo, Via Euganea Bresseo - Treponti

Descrizione annuncio

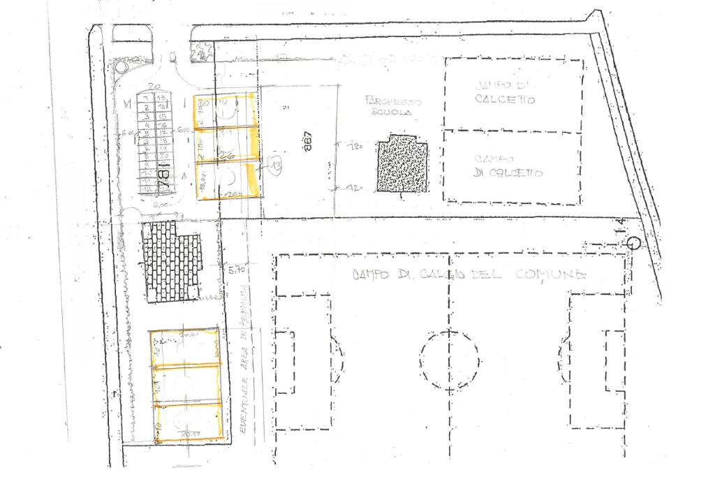
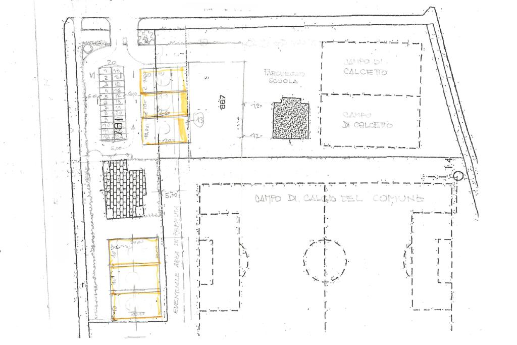
LOCALITA': TREPONTI DI TEOLO (PD) -

immerso nel verde dei Colli Euganei e situato lungo la principale via di collegamento, proponiamo in VENDITA un interessante complesso immobiliare a destinazione commerciale, sportiva e residenziale, ideale sia come investimento sia per lo sviluppo di un’attività polifunzionale.

La proprietà si estende su una superficie complessiva di circa 5.000 mq e comprende un immobile ad uso ristorazione di circa 220 mq, affiancato da una comoda abitazione annessa di 100 mq, entrambi dotati di riscaldamento e condizionamento autonomi.

La vasta area esterna rappresenta uno dei principali punti di forza del complesso: sono presenti numerosi campi sportivi dedicati al tennis, al calcetto, al beach volley e ad altre attività all’aperto, inseriti in un contesto naturale particolarmente piacevole.

A servizio della struttura sono inoltre disponibili ampi spazi adibiti a parcheggio, facilmente accessibili.

Il complesso è in parte già a reddito e offre la possibilità di essere frazionato, garantendo così grande flessibilità di utilizzo e interessanti prospettive di valorizzazione.

La posizione strategica, la visibilità e l’armonia con l’ambiente circostante rendono questa proposta unica nel suo genere.

Mostra tutto

Nelle vicinanze

Trasporto pubblico Trasporto pubblico
Trasporto pubblico
1,2 Km
Tramonte
Tramonte
2,6 Km
Ricariche auto elettriche Ricariche auto elettriche
Famila San Biagio
1,9 Km
Scuole Scuole
Tito Livio
270 m
Scuola primaria Maria Montessori
640 m
Schuola Media K.Wojtyla
1,3 Km
Scuole
1,3 Km
Farmacia Farmacia
Farmacia Perini
260 m
Farmacia San Michele
1,2 Km
Supermercati Supermercati
Il Forno - Punto Simply
100 m
Prix
1,3 Km
Famila
1,9 Km
Negozi Negozi
Belmarket Casarotto Diego minimarket
760 m
Cose Belle S.n.c.
980 m
Bar Bar
Bar birreria al Cavallino
80 m
Millennium bar
150 m
Bella Vita
440 m
Bar
1,6 Km
Bar Caffetteria Fuori Giri
1,6 Km
Ristoranti Ristoranti
Pizzeria il Veliero
220 m
Trattoria Montemerlo
1,1 Km
Piccolo Rifugio
1,1 Km
il Caminetto
1,1 Km
Trattoria da Iseo
1,6 Km
Mostra tutto

Caratteristiche

Rif.:
61157390
Piano:
Su più livelli di 2
Totale piani:
2
Posti auto:
30
Condizionamento:
Autonomo
Ascensore:
No
Mostra tutto
Prezzo Prezzo
€ 500.000
Rata mutuo Rata mutuo
€ 2.356 / mese
Spese annue Spese annue
€ 0
Proponi il tuo prezzoProponi il tuo prezzo

Classe Energetica

C
C
C
C
C
C
C
C
C
EP globale non rinnovabile:
98.78 kW h/m² anno
EP globale rinnovabile:
0.45 kW h/m² anno
EP invernale del fabbricato:
EP estiva del fabbricato:
Anno di costruzione:
2010
Riscaldamento:
Autonomo
Tipo impianto:
Ad aria
Tipo alimentazione:
Aria

Ti interessa visionare l'immobile?

Fissa un appuntamento  Fissa un appuntamento

Richiedi informazioni

Clicca su Leggi per aprire l'informativa
* Questi campi sono obbligatori

Calcola il tuo mutuo

Semplice e senza impegno
Anticipo

( % )
Mutuo

( % )

pochi semplici passi

inserisci i tuoi dati
Questionario completato
Grazie per aver richiesto un appuntamento senza impegno con un nostro Consulente del Credito e Assicurativo.

Hai inserito correttamente tutti i dati necessari e a breve riceverai una e-mail con un link da convalidare per inviare i tuoi dati.
Affiliato
Industriale Sud Srl
Via Battaglia, 129 35020 Albignasego (PD)

Il nostro staff


  • Ida Carraro
    Responsabile

  • Domiziano Daniele
    Affiliato

  • Aurora Albertin
    Collaboratrice

  • Laura Tresoro
    Coordinatrice
Via Battaglia, 129 35020 Albignasego (PD)
Zona: Padova Città Centro Sud e Provincia Sud
Mostra su mappa
Orari: LUN. - VEN. : 08:30 / 12:30 - 14:00 / 19:00 SAB. 09:00 / 12:00
Affiliato
Industriale Sud Srl
Via Battaglia, 129 35020 Albignasego (PD)

2026 Tecnocasa Franchising S.p.A. - P. IVA 08365160152 - Via Monte Bianco 60/A 20089 Rozzano (MI). Ogni agenzia ha un proprio titolare ed è autonoma. Privacy policy | Policy utilizzo | Cookie policy