Ufficio in affitto

Ponte San Nicolò, Via S. Pellico
€ 900 / mese
5 locali 5 locali
100 Mq 100 Mq
1 bagno 1 bagno

Ufficio in affitto

Ponte San Nicolò, Via S. Pellico

Descrizione annuncio

LOCALITA': PONTE SAN NICOLO' (PD) -

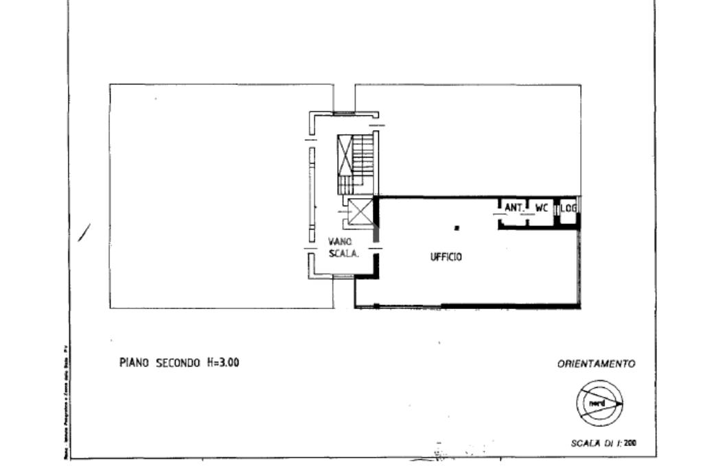
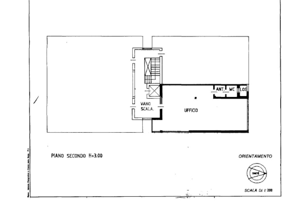
proponiamo in LOCAZIONE, ufficio libero da subito sito al secondo ed ultimo piano di palazzina direzionale.

L'immobile molto luminoso, è attualmente diviso in 5 locali, con ripostiglio e bagno con antibagno.

Impianti clima recenti ed autonomi.

Parcheggi pubblici adiacenti.

A completare la proprietà ascensore e posto auto esclusivo.

Non compreso nel canone, ma con possibilità di aggiunta, garage doppio.

Canone non soggetto ad iva.

Mostra tutto

Nelle vicinanze

Trasporto pubblico Trasporto pubblico
Padova Interporto
Padova Interporto
2,5 Km
PSN Piovese 182
PSN Piovese 182
170 m
PSN Piovese 161
PSN Piovese 161
190 m
Ricariche auto elettriche Ricariche auto elettriche
Parcheggio Facciolati
2,7 Km
ENEL X EVA+ e-distribuzione Via Urugay, 30 Padova
2,7 Km
Fondazione Fenice Green Energy Park Onlus | Driwe
2,8 Km
Serenissima Service | EnelX
3,0 Km
Scuole Scuole
Dipartimento ICEA, sede di Lungargine Rovetta, Univeristà di Padova
1,3 Km
Scuola media Stefanini
1,4 Km
Laboratorio di Propulsione Aerospaziale - Università di Padova
1,4 Km
Scuola Elementare I.Nievo
1,4 Km
Liceo scientifico Alvise Cornaro
1,9 Km
Farmacia Farmacia
Ziliotto Pattanaro
190 m
San Nicolò
950 m
Farmacia Stoppa
980 m
Farmacia Meltias
2,2 Km
Farmacia Perin Franco
2,3 Km
Ospedali Ospedali
Ospedale Sant'Antonio
2,7 Km
Supermercati Supermercati
Isola Fruit
160 m
Kilometri Zero
180 m
NaturaSi
920 m
CRAI Voltabarozo
1,1 Km
Prix
1,2 Km
Negozi Negozi
Il fornaio
200 m
Il Punto
510 m
Pellicceris elle furs
1,0 Km
Negozi
1,1 Km
Sogni di ogni ora
1,2 Km
Bar Bar
Bar
740 m
Snack Bar Spritzeria Click
1,1 Km
Zanzibar
1,1 Km
Loris Bar
1,2 Km
Bar Stella
2,3 Km
Ristoranti Ristoranti
La Fiorentina
340 m
Pizzeria da Checco
420 m
Singapore
470 m
Ca di Volta
630 m
Paulaner
810 m
Mostra tutto

Caratteristiche

Rif.:
61129200
Piano:
2 di 2 con ascensore (ultimo Piano)
Posti auto:
1
Condizionamento:
Autonomo
Ascensore:
Riscaldamento:
Autonomo
Mostra tutto
Prezzo Prezzo
€ 900 / mese
Spese annue Spese annue
€ 450

Classe Energetica

G
G
G
G
G
G
G
G
G
EP globale non rinnovabile:
102.13 kW h/m² anno
EP globale rinnovabile:
37.92 kW h/m² anno
EP invernale del fabbricato:
EP estiva del fabbricato:
Anno di costruzione:
1990
Riscaldamento:
Autonomo
Tipo impianto:
Ad aria
Tipo alimentazione:
Metano

Ti interessa visionare l'immobile?

Fissa un appuntamento  Fissa un appuntamento

Richiedi informazioni

Clicca su Leggi per aprire l'informativa
* Questi campi sono obbligatori
Affiliato
Industriale Sud Srl
Via Battaglia, 129 35020 Albignasego (PD)

Il nostro staff


  • Ida Carraro
    Responsabile

  • Domiziano Daniele
    Affiliato

  • Aurora Albertin
    Collaboratrice

  • Laura Tresoro
    Coordinatrice
Via Battaglia, 129 35020 Albignasego (PD)
Zona: Padova Città Centro Sud e Provincia Sud
Mostra su mappa
Orari: LUN. - VEN. : 08:30 / 12:30 - 14:00 / 19:00 SAB. 09:00 / 12:00
Affiliato
Industriale Sud Srl
Via Battaglia, 129 35020 Albignasego (PD)

2025 Tecnocasa Franchising S.p.A. - P. IVA 08365160152 - Via Monte Bianco 60/A 20089 Rozzano (MI). Ogni agenzia ha un proprio titolare ed è autonoma. Privacy policy | Policy utilizzo | Cookie policy