Capannone in vendita

Ponte San Nicolò, Via Silvio Pellico
€ 365.000
10 locali 10 locali
445 Mq 445 Mq
1 bagno 1 bagno

Capannone in vendita

Ponte San Nicolò, Via Silvio Pellico

Descrizione annuncio

LOCALITA': PONTE SAN NICOLO' (PD) -

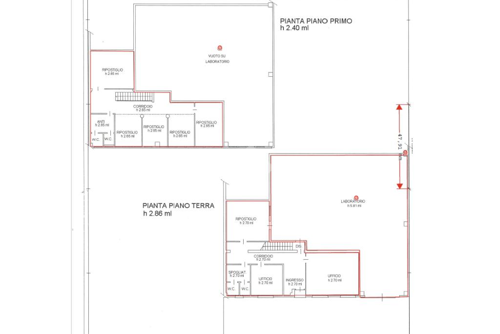
proponiamo in VENDITA, porzione di capannone artigianale di 445 mq circa.

Superficie complessiva di 445 mq così suddivisa: 116 mq uffici piano terra, 119 mq uffici soppalco, 210 mq magazzino piano terra con altezza interna di 5,81 mt;

L'immobile è dotato di impianto di riscaldamento e raffrescamento nella zona uffici ed impianto elettrico funzionante;

Sono presenti due servizi igienici

Accessibile tramite un portone, un accesso carraio ed accesso pedonale.

Posizionato nella zona industriale di Roncaglia di Ponte San Nicolò.

A 400 mt dalla tangenziale “Corso Esperanto”.

Mostra tutto

Nelle vicinanze

Trasporto pubblico Trasporto pubblico
Padova Interporto
Padova Interporto
2,5 Km
PSN Piovese 182
PSN Piovese 182
160 m
PSN Piovese 161
PSN Piovese 161
180 m
Ricariche auto elettriche Ricariche auto elettriche
Parcheggio Facciolati
2,7 Km
ENEL X EVA+ e-distribuzione Via Urugay, 30 Padova
2,7 Km
Fondazione Fenice Green Energy Park Onlus | Driwe
2,8 Km
Scuole Scuole
Dipartimento ICEA, sede di Lungargine Rovetta, Univeristà di Padova
1,4 Km
Scuola media Stefanini
1,4 Km
Laboratorio di Propulsione Aerospaziale - Università di Padova
1,4 Km
Scuola Elementare I.Nievo
1,4 Km
Liceo scientifico Alvise Cornaro
1,9 Km
Farmacia Farmacia
Ziliotto Pattanaro
180 m
San Nicolò
950 m
Farmacia Stoppa
980 m
Farmacia Meltias
2,2 Km
Farmacia Perin Franco
2,3 Km
Ospedali Ospedali
Ospedale Sant'Antonio
2,7 Km
Supermercati Supermercati
Isola Fruit
140 m
Kilometri Zero
180 m
NaturaSi
920 m
CRAI Voltabarozo
1,1 Km
Prix
1,2 Km
Negozi Negozi
Il fornaio
190 m
Il Punto
510 m
Pellicceris elle furs
1,0 Km
Negozi
1,1 Km
Sogni di ogni ora
1,1 Km
Bar Bar
Bar
740 m
Snack Bar Spritzeria Click
1,1 Km
Zanzibar
1,1 Km
Loris Bar
1,2 Km
Bar Stella
2,3 Km
Ristoranti Ristoranti
La Fiorentina
330 m
Pizzeria da Checco
410 m
Singapore
470 m
Ca di Volta
630 m
Paulaner
800 m
Mostra tutto

Caratteristiche

Rif.:
61191675
Piano:
Su più livelli di 2
Totale piani:
2
Condizionamento:
Autonomo
Ascensore:
No
Riscaldamento:
Autonomo
Mostra tutto
Prezzo Prezzo
€ 365.000
Rata mutuo Rata mutuo
€ 1.721 / mese
Spese annue Spese annue
€ 0
Proponi il tuo prezzoProponi il tuo prezzo

Classe Energetica

E
E
E
E
E
E
E
E
E
EP globale non rinnovabile:
325.00 kW h/m² anno
EP globale rinnovabile:
215.00 kW h/m² anno
EP invernale del fabbricato:
EP estiva del fabbricato:
Anno di costruzione:
2004
Riscaldamento:
Autonomo
Tipo impianto:
Ad aria
Tipo alimentazione:
Aria

Ti interessa visionare l'immobile?

Fissa un appuntamento  Fissa un appuntamento

Richiedi informazioni

Clicca su Leggi per aprire l'informativa
* Questi campi sono obbligatori

Calcola il tuo mutuo

Semplice e senza impegno
Anticipo

( % )
Mutuo

( % )

pochi semplici passi

inserisci i tuoi dati
Questionario completato
Grazie per aver richiesto un appuntamento senza impegno con un nostro Consulente del Credito e Assicurativo.

Hai inserito correttamente tutti i dati necessari e a breve riceverai una e-mail con un link da convalidare per inviare i tuoi dati.
Affiliato
Industriale Sud Srl
Via Battaglia, 129 35020 Albignasego (PD)

Il nostro staff


  • Ida Carraro
    Responsabile

  • Domiziano Daniele
    Affiliato

  • Laura Tresoro
    Coordinatrice
Via Battaglia, 129 35020 Albignasego (PD)
Zona: Padova Città Centro Sud e Provincia Sud
Mostra su mappa
Orari: LUN. - VEN. : 08:30 / 12:30 - 14:00 / 19:00 SAB. 09:00 / 12:00
Affiliato
Industriale Sud Srl
Via Battaglia, 129 35020 Albignasego (PD)

2026 Tecnocasa Franchising S.p.A. - P. IVA 08365160152 - Via Monte Bianco 60/A 20089 Rozzano (MI). Ogni agenzia ha un proprio titolare ed è autonoma. Privacy policy | Policy utilizzo | Cookie policy