Capannone in affitto

Conselve, Viale del Commercio
€ 1.500 / mese
2 locali 2 locali
500 Mq 500 Mq
2 bagni 2 bagni

Capannone in affitto

Conselve, Viale del Commercio

Descrizione annuncio

LOCALITA': CONSELVE (PD) -

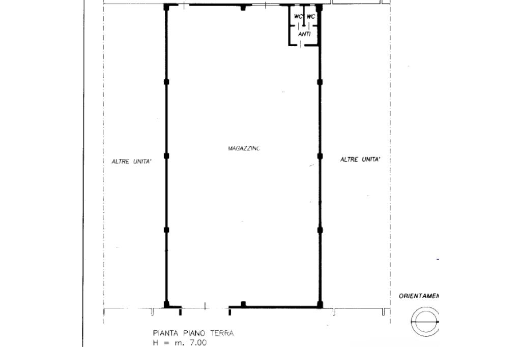
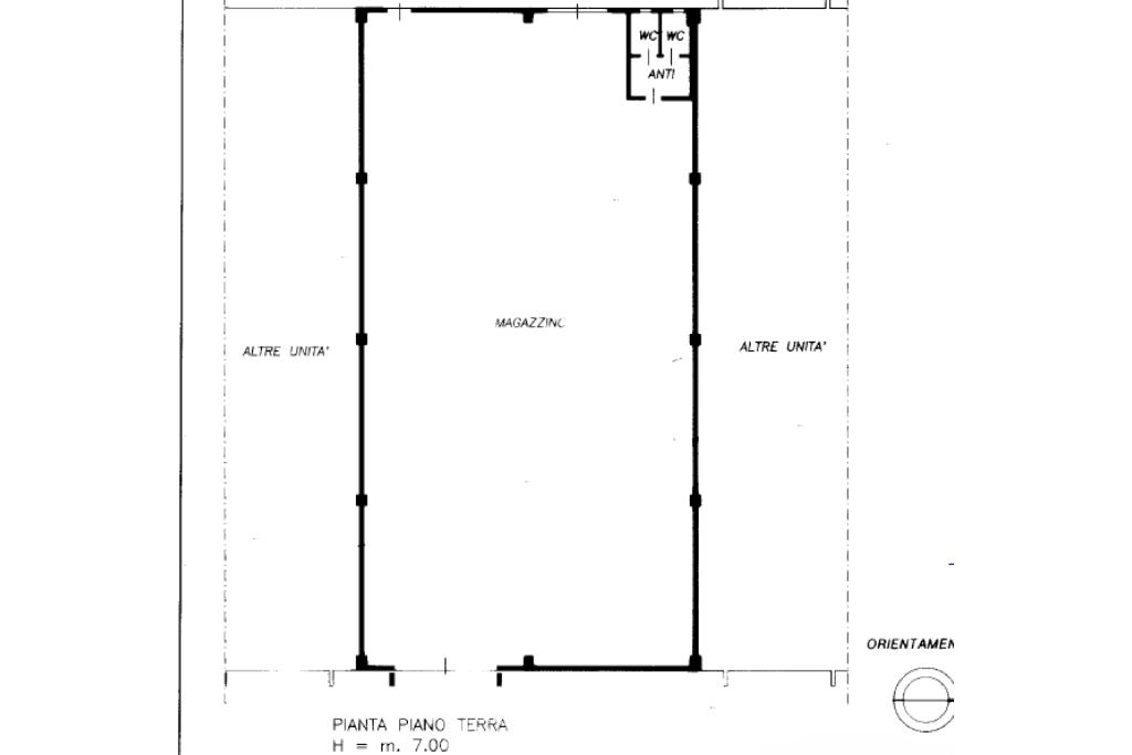
proponiamo in LOCAZIONE porzione di capannone industriale di circa 500 mq, con uffici di circa 20 mq.

L’immobile presenta un’altezza interna di 7 metri sotto trave.

Sono presenti due servizi igienici.

L’area produttiva è priva di impianti di riscaldamento e condizionamento.

L'area uffici è dotata di riscaldamento e condizionamento tramite pompa di calore.

Attualmente occupato.

Canone soggetto a IVA.

Situato nel cuore della zona industriale di Conselve, in contesto produttivo ben servito.

Mostra tutto

Nelle vicinanze

Trasporto pubblico Trasporto pubblico
Trasporto pubblico
680 m
Palù
Palù
750 m
Scuole Scuole
Istituto Comprensivo di Bagnoli di Sopra
2,0 Km
Scuole
2,3 Km
ENAIP Conselve
2,8 Km
Farmacia Farmacia
Farmacia
2,9 Km
Supermercati Supermercati
Lando
630 m
In's Supermecato
2,2 Km
Ristoranti Ristoranti
Ristorante Pizzeria Barolo
1,8 Km
Ristoranti
2,3 Km
Mostra tutto

Caratteristiche

Rif.:
61171489
Piano:
Terra di 1
Totale piani:
1
Condizionamento:
Assente
Ascensore:
No
Riscaldamento:
Assente
Mostra tutto
Prezzo Prezzo
€ 1.500 / mese
Spese annue Spese annue
€ 0

Classe Energetica

G
G
G
G
G
G
G
G
G
EP globale non rinnovabile:
170.08 kW h/m² anno
EP globale rinnovabile:
4.75 kW h/m² anno
EP invernale del fabbricato:
EP estiva del fabbricato:
Anno di costruzione:
1990
Riscaldamento:
Assente

Ti interessa visionare l'immobile?

Fissa un appuntamento  Fissa un appuntamento

Richiedi informazioni

Clicca su Leggi per aprire l'informativa
* Questi campi sono obbligatori
Affiliato
Industriale Sud Srl
Via Battaglia, 129 35020 Albignasego (PD)

Il nostro staff


  • Ida Carraro
    Responsabile

  • Domiziano Daniele
    Affiliato

  • Laura Tresoro
    Coordinatrice
Via Battaglia, 129 35020 Albignasego (PD)
Zona: Padova Città Centro Sud e Provincia Sud
Mostra su mappa
Orari: LUN. - VEN. : 08:30 / 12:30 - 14:00 / 19:00 SAB. 09:00 / 12:00
Affiliato
Industriale Sud Srl
Via Battaglia, 129 35020 Albignasego (PD)

2026 Tecnocasa Franchising S.p.A. - P. IVA 08365160152 - Via Monte Bianco 60/A 20089 Rozzano (MI). Ogni agenzia ha un proprio titolare ed è autonoma. Privacy policy | Policy utilizzo | Cookie policy