Negozio in vendita

Bagnoli Di Sopra, Via G. Mazzini
€ 440.000
2 locali 2 locali
1600 Mq 1600 Mq
1 bagno 1 bagno

Negozio in vendita

Bagnoli Di Sopra, Via G. Mazzini

Descrizione annuncio

LOCALITA': BAGNOLI DI SOPRA (PD) -

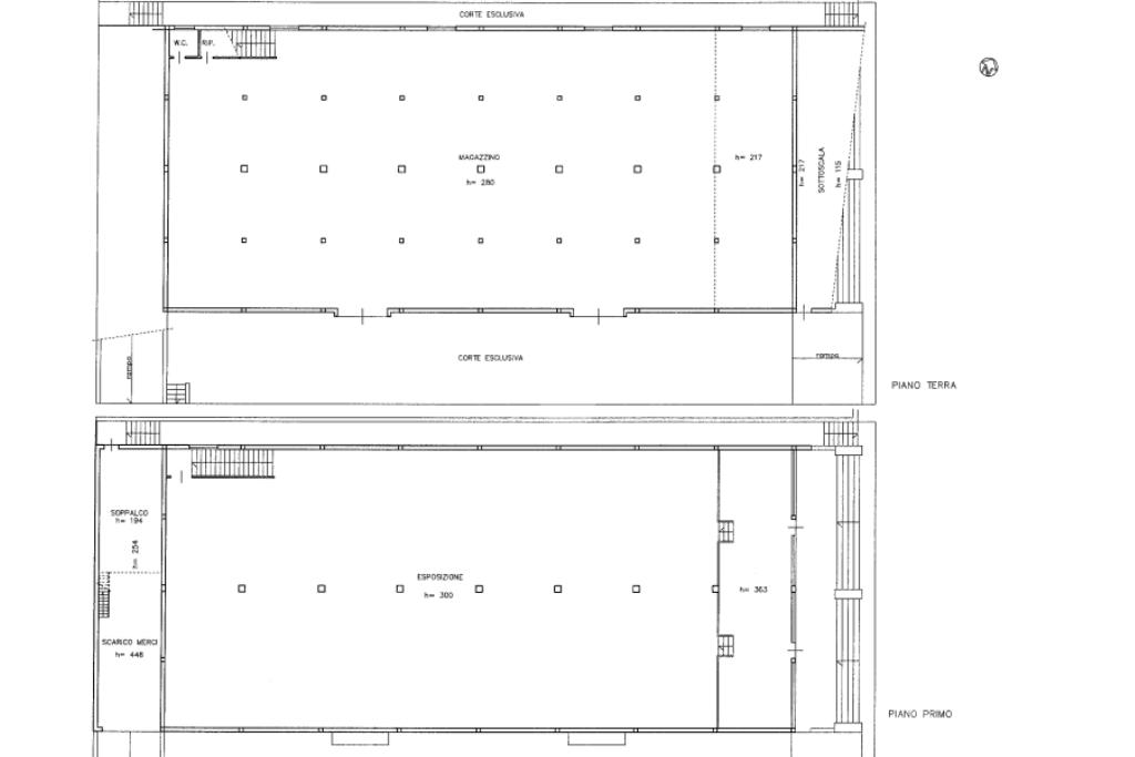
Proponiamo in vendita negozio di circa 1.600 mq, sviluppato su due livelli, ideale per attività commerciali, showroom o spazi espositivi.

Piano terra: altezza interna di 2,80 mt, composto da ampia area utilizzabile come magazzino o spazio operativo, servizio WC e ripostiglio.

Piano primo: grande area espositiva open space con altezza interna di 3 mt, particolarmente adatta per showroom, esposizione o attività aperte al pubblico.

L’immobile è dotato di impianto di climatizzazione e riscaldamento completamente autonomi, garantendo comfort e gestione indipendente degli ambienti.

Completa la proprietà la presenza di posti auto fronte immobile, comodi per clientela e personale.

Soluzione interessante per attività commerciali, esposizioni o aziende che necessitano di ampi spazi funzionali e facilmente accessibili.

Mostra tutto

Nelle vicinanze

Trasporto pubblico Trasporto pubblico
Trasporto pubblico
1,5 Km
Palù
Palù
2,7 Km
Scuole Scuole
Istituto Comprensivo di Bagnoli di Sopra
130 m
Scuole
440 m
Supermercati Supermercati
Lando
2,8 Km
Ristoranti Ristoranti
Ristoranti
740 m
Mostra tutto

Caratteristiche

Rif.:
61189810
Piano:
Su più livelli di 2
Totale piani:
2
Posti auto:
3
Condizionamento:
Autonomo
Ascensore:
No
Mostra tutto
Prezzo Prezzo
€ 440.000
Rata mutuo Rata mutuo
€ 2.074 / mese
Spese annue Spese annue
€ 0
Proponi il tuo prezzoProponi il tuo prezzo

Classe Energetica

Questo immobile è esente da classe energetica
Anno di costruzione:
1965
Riscaldamento:
Autonomo
Tipo impianto:
A radiatori
Tipo alimentazione:
Aria

Ti interessa visionare l'immobile?

Fissa un appuntamento  Fissa un appuntamento

Richiedi informazioni

Clicca su Leggi per aprire l'informativa
* Questi campi sono obbligatori

Calcola il tuo mutuo

Semplice e senza impegno
Anticipo

( % )
Mutuo

( % )

pochi semplici passi

inserisci i tuoi dati
Questionario completato
Grazie per aver richiesto un appuntamento senza impegno con un nostro Consulente del Credito e Assicurativo.

Hai inserito correttamente tutti i dati necessari e a breve riceverai una e-mail con un link da convalidare per inviare i tuoi dati.
Affiliato
Industriale Sud Srl
Via Battaglia, 129 35020 Albignasego (PD)

Il nostro staff


  • Ida Carraro
    Responsabile

  • Domiziano Daniele
    Affiliato

  • Laura Tresoro
    Coordinatrice
Via Battaglia, 129 35020 Albignasego (PD)
Zona: Padova Città Centro Sud e Provincia Sud
Mostra su mappa
Orari: LUN. - VEN. : 08:30 / 12:30 - 14:00 / 19:00 SAB. 09:00 / 12:00
Affiliato
Industriale Sud Srl
Via Battaglia, 129 35020 Albignasego (PD)

2026 Tecnocasa Franchising S.p.A. - P. IVA 08365160152 - Via Monte Bianco 60/A 20089 Rozzano (MI). Ogni agenzia ha un proprio titolare ed è autonoma. Privacy policy | Policy utilizzo | Cookie policy